Kesäinen Seinäjoki

Puuttomankuja 6 A,
60200 Seinäjoki

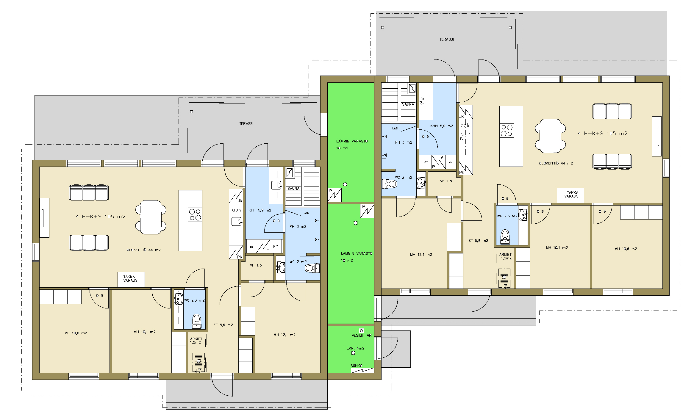
3mh,oh,k,khh,2wc,vh,ph,s


335 000 €

(3190 €/m²)

Tyyppi
Paritalo
Asuinala
105.0 m²
Alue
Soukkajoki
Rakennusvuosi
2025

Ennakkomarkkinoinnissa! Upea paritalokoti Seinäjoen rantamaisemassa.

Vuoden 2025 kiinnostavin uudiskohde on täällä! Soukkajoelle, upealle joenrantatontille rakentuu moderni ja toiminnallinen paritalo, jossa yhdistyvät nykyaikainen arkkitehtuuri, laadukkaat materiaalit ja arkea helpottavat ratkaisut. Tontin rakennusoikeudesta käytetään vain reilu puolet, jotta tilaratkaisut pysyvät ilmavina ja käytännöllisinä. Tontti on oma, 1450 m². Kiinnostaisiko muuten lähteä kajakilla iltalenkille Seinäjoelle omasta pihasta!

Paritalon molemmat huoneistot ovat yksitasoisia, leveitä ja kapearunkoisia perheasuntoja, joiden sydämenä toimii 44 m² kokoinen olokeittiö. Korkea, 3 metrin sisäkatto ja joelle avautuva 2,2 metrin ikkunaseinä tuovat runsaasti valoa ja tilantuntua. Keittiössä suuri saareke toimii niin aamiaispaikkana kuin lasten läksyjen tekoon sopivana työpisteenä.

Kaikki makuuhuoneet ovat yli 10 m² kokoisia ja varustettu korkeilla liukuovikaapistoilla. Päämakuuhuoneen yhteydessä on oma vaatehuone sekä oma wc, joka toimii samalla pesutilojen wc-tilana. Toinen erillinen wc-tila on sijoitettu yleisiin tiloihin perheen ja vieraiden käyttöön.

Sisäänkäynnin yhteydessä oleva arkieteinen liukuovin erotettuna helpottaa arkea erityisesti lapsi- ja koiraperheissä. Varustukseen kuuluu kurasyöppö ja käsisuihku jolla puhdistaa lastenvaunut ja koirantassut. Myös kodinhoitohuone on suunniteltu käytännöllisyyttä silmällä pitäen – sieltä on suora kulku joenpuoleiselle terassille, mikä tekee saunasta ja pesuhuoneesta entistäkin viihtyisämmän.

Pesuhuoneessa on kaksi suihkua, ja saunaa reunustaa lasiseinä, joka avaa näkymän pesutilaan. Saunasta on myös ikkuna joelle, mikä luo rauhallisen ja tunnelmallisen saunomishetken.

Asuntojen väliin rakennettavat lämpimät varastot tuovat yksityisyyttä ja rauhaa. Molemmilla huoneistoilla on oma 10 m² lämmin varasto. Lisäksi molempien autokatoksien yhteyteen rakennetaan 6,5 m² kokoinen ulkoiluvälinevarasto, joka tarjoaa reilusti lisätilaa harrastusvälineille. Omaan autokatokseen kuuluu kahden auton katos, joka on suunniteltu mahdollista muutosta varten – rakennusoikeus sallii katoksen muuttamisen 37 m² kokoiseksi lämpimäksi autotalliksi ja vesi- ja viemärivaraukset tehdään valmiiksi rakennusvaiheessa.

Lämmitysmuotona toimii kaukolämpö vesikiertoisella lattialämmityksellä, jossa on tilakohtaiset termostaatit. Lisäksi asennetaan huoneistokohtaiset sähkö- ja vesimittarit sekä koneellinen ilmanvaihto lämmöntalteenotolla. Kohteeseen kuuluu myös kaapeli-TV ja valokuituyhteys.

Rakentajana toimii paikallinen, laadukkaasta työstään tunnettu Seinrac Oy. Materiaalivalintoihin pääsee vielä vaikuttamaan rakennusvaiheessa, joten voit räätälöidä kodistasi juuri sinulle sopivan.

Varausmaksu on 4 % kauppahinnasta, ja lopullinen kauppahinta maksetaan vasta kohteen valmistuttua ja viranomaisten käyttöönottotarkastuksen jälkeen. Arvioitu valmistuminen loppuvuosi 2025.

Ole yhteydessä ja varaa oma kotisi nyt!

Yhteystiedot

  • Harri Kätkänaho
  • harri.katkanaho@katkanaho.fi
  • 0400 565460

Harri Kätkänaho

Seuraava esittely

Ei tulevia esittelyjä

Sijainti
  • Soukkajoki
  • Puuttomankuja 6 A
  • 60200
  • Seinäjoki
TyyppiParitalo
Huoneistoselitelmä3mh,oh,k,khh,2wc,vh,ph,s
Asuinpinta-ala m²105 m²
Yhteensä m²115 m²
Lisätietoja pinta-alastaAsuintilojen pinta-ala on 105 m², Muut tilat on asunnon yhteydessä olevan lämpimän varaston pinta-ala. autokatoksen yhteydessä on lisäksi 6,5 m² kylmä varasto.
Kerros1
Kerroksia1
Käyttöönottovuosi2025

Velaton hinta335 000 €
Myyntihinta335 000 €

Sauna
  • oma sauna
Tulisija
  • takkavaraus
Tilojen kuvausEteistilassa liukuovien takana arkieteinen kurasyöpöllä ja vesipisteellä.
Asuntoon kuuluu
  • kaapeli-tv
YleiskuntoUusi
Lämmitysjärjestelmän kuvausKauko

Katto
  • harja
  • pelti
Keittiön kuvaus
  • Kalusteovi sileä maalattu mdf ovi valkoinen (kalusteväritykset asiakasmuutoksin). työtasot korkeapainelaminaatti 40mm. Kodinkoneet Siemens/AEG, erillisuuni ja keraaminen induktioliesitaso. astianpesukone integroidulla kalusteovella. Liesituuletin aktiivihiili-puhdistimilla liesitasoon integroituna (alaspäin vetävä). Eriliset kylmälaitteet jääkaappi ja pakastin. Olohuoneeseen päin levennetty saareke joka toimii myös aamiaispöytänä.
Kylpyhuoneen kuvaus
  • Pesuhuone kokonaan laatoitettu, suihkutilassa 2 suihkua. Pesuhuoneesta käynti erilliseen suljettavaan WC-tilaan joka toimii samalla päämakuuhuoneen WC-tilana.
WC-tilojen kuvaus
  • Lukumäärä:2
  • Asuintilojen erillinen WC lattia ja kalusteiden välitila laatoitettu. seinät maalattu kipsilevy.
Saunan kuvaus
  • Saunan paneloinnit ja lauteet lämpökäsitelty haapa. Saunan ja pesuhuoneen välillä lasiseinä lasiovella.
Kodinhoitohuoneen kuvaus
  • Kodinhoitohuoneen lattia ja kalusteiden välitila laatoitettu. seinät maalattu kipsilevy. Kalusteovi sileä maalattu mdf ovi valkoinen (kalusteväritykset asiakasmuutoksin). työtasot korkeapainelaminaatti 40mm. Khh kalusteissa käsiallas ja työtasoa, korkea pyykkikaappi ja siivouskomero, tilavaraus pesutornille
Olohuoneen kuvaus
  • Lattiamateriaali vinyylilankki (asiakasvalinnoin), seinät maali tai tapetti (asiakasvalinnoin), Sisäkatto tasoitettu ja sileä levypinta maalattuna. Huom! oh ja k tilassa (44 m²) korotettu sisäkatto (3m)
Makuuhuoneiden kuvaus
  • Lukumäärä: 3
  • Lattiamateriaali vinyylilankki (asiakasvalinnoin), seinät maali tai tapetti (asiakasvalinnoin), Sisäkatto tasoitettu ja sileä levypinta maalattuna. Makuuhuoneiden kaapistot korkea liukuovi, päämakuuhuoneessa lisäksi erillinen vaatehuone. Kaikki makuhuoneet tilavia (10-12 m²)
Säilytystilojen kuvaus ja lisätiedotLämmin 10 m² ulkovarasto jossa hyllyseinä ja vaatetanko. Autokatoksen yhteydessä kylmä 6,5 m² urheiluvälinevarasto.

Kiinteistötunnus/laitostunnus743-18-81-6
Kortteli/kiinteistön nimi81
Tontin pinta-ala1450 m²
Tontin omistusOma
Lisätietoja rakennusoikeudesta450 + at80 m²

PalvelutS-market Simuna n. 1,6 km, Keskusta n. 6 km,
PäiväkotiPilke Luontopäiväkoti Vihreä Willa 1,8 km
KoulutTörnävän koulu (alakoulu) 2,5 km, Pruukin yhtenäiskoulu (yläkoulu) 2,4 km

Haluatko lisätietoja tai varata esittelyn?

Jätä numero tai sähköposti niin otan sinuun yhteyttä pikimmiten.

Samankaltaisia asuntoja