Sahalankatu 16,
60100 Seinäjoki

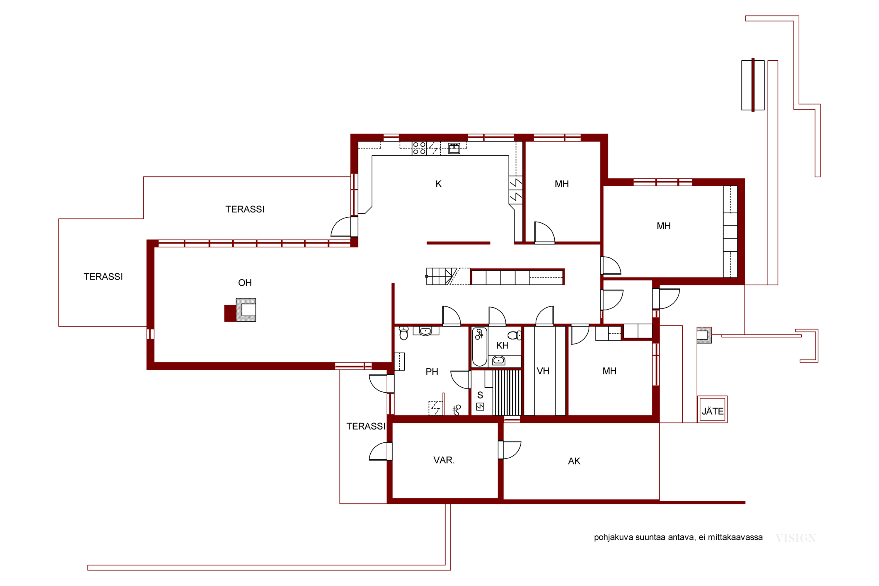
3mh,oh,k,psh,s


349 000 €

(2102 €/m²)

Tyyppi
Omakotitalo
Asuinala
166.0 m²
Alue
Marttila
Rakennusvuosi
-

Tämä arkkitehdin suunnittelema hyvinpidetty koti sijaitsee aivan keskustan läheisyydessä, kuitenkin omassa rauhassa ja kaupan päälle tulee vielä iso uima-allas, johon pääsee pulahtamaan suoraan saunatiloista.
Talo on rakennettu 1984 ja siinä on 3 makuuhuonetta, upean tilavat keittiö ja olohuone, lisäksi parvella työ-, varasto- ja makuutilaa. Keittiöstä pääsee kätevästi katetulle terassille ja talon päädyssä on lisäksi valokatteellinen terassi, jossa voi nauttia kesäpäivistä uima-altaalla. Kaunis, suojaisa, aidattu tontti, jossa istutuksia ja hedelmäpuita ja tontin takaosassa lisäksi aitta vaikka vierasmajaksi. Iso, lämmin varasto ja autokatos ovat talon yhteydessä.
Talossa on sähkölämmitys, mutta varaava takka ja ilmalämpöpumppu takaavat kohtuullisen kulutuksen.

Talossa on tehty remontteja vuosien varrella mm. keittiö laajennettu ja uusittu 2000, ikkunat on uusittu 2022 (vain kaksi pestävää pintaa! ) myös katto on putsattu ja pinnoitettu, sekä takka uusittu.

Tässä on nyt se jokaisen unelma: talo lähes keskellä kaupunkia, veden äärellä ja kuitenkin omassa rauhassa!
Soittele, niin käydään katsomassa! p. 0400-565426

Yhteystiedot

  • Raija Feldt
  • raija.feldt@katkanaho.fi
  • 0400565426

Raija Feldt

Seuraava esittely

Ei tulevia esittelyjä

Sijainti
  • Marttila
  • Sahalankatu 16
  • 60100
  • Seinäjoki
TyyppiOmakotitalo
Huoneistoselitelmä3mh,oh,k,psh,s
Asuinpinta-ala m²166 m²
Yhteensä m²177.5 m²
Lisätietoja pinta-alastaAsuintilojen huoneistoala ilman parvea 166 m², muut tilat 11,5 m² on varaston huoneistoala. Rakennuslupapiirustuksissa lämpimän tilan kerrosala on 187 m² + parvi 16 m²
Käyttöönottovuosi1984
VapautuminenSopimuksen mukaan

Velaton hinta349 000 €
Myyntihinta349 000 €
Kiinteistövero640,00 €

Sauna
  • oma sauna
Tulisija
  • takka
  • varaava takka (uusittu 2019)
Asuntoon kuuluu
  • kaapeli-tv
YleiskuntoHyvä
Tehdyt korjauksetIkkunat uusittu 2022 uusi takka 2019 katto pesty ja pinnoitettu 2017
EnergialuokkaE2018
Lämmitysjärjestelmän kuvausSähkö

Asunnon tilat ja materiaalit
  • Pääasiallinen rakennusmateriaali: puu, tiili
  • eteisessä laattalattia (alkuperäinen), keittiössä valkoinen iso keraaminen laatta, molemmissa lattialämmitys, olohuoneessa mosaiikkiparketti, yhdessä makuuhuoneessa laminaatti, kahdessa muovimatot
  • kauttaaltaan puupaneloidut katot
Katto
  • murrettu harja
  • tiili
Keittiön kuvaus
  • keittiön kaapistot valkoinen, uritettu mdf-ovi, metallivedin (uusittu -00), tasoliesi, erillisuunilla, liesituuletin, astianpesukone, pakastin, jää/viileäkaappi upean isossa keittiössä paljon kaapistoja, sekä laskutilaa, sekä tilaa isolle pöydälle
Kylpyhuoneen kuvaus
  • tilava pesuhuone kokonaan kaakeloitu, siisti alkuperäiskunto, suihkuseinä, pesukoneliitäntä, allaskaapisto, toinen wc, ovi ulos
WC-tilojen kuvaus
  • Lukumäärä:2
  • erillisessä wc:ssä amme ja allaskaapisto, kalusteiden väritys ajan hengen mukainen
Saunan kuvaus
  • sauna siisti alkuperäiskuntoinen,
Kodinhoitohuoneen kuvaus
  • erillistä kodinhoitohuonetta ei talossa ole, mutta eteisessä on monitoimikaapisto, josta löytyy mankelille paikka, silityslautamekanismi ja ompelukoneelle taittuva hylly ja kaikki siististi ovien takana
Olohuoneen kuvaus
  • Tilava olohuone, johon tulee valoa kolmelta suunnalta ja uusittu varaava takka jakaa olohuonetilan mielesi mukaan, takaosaan voit laittaa työpisteen, kirjastohuoneen, tv-katselutilan tai jos rakennat siihen seinän saat neljännen makuuhuoneen
Makuuhuoneiden kuvaus
  • Lukumäärä: 3
  • talossa on kolme makuuhuonetta, joista yhden koko on jopa19 m²! kaksi muuta n. 11 m², parvella lisäksi työ-/säilytystilaa ja kaksi alkovia johon sopii vaikkapa vierassängyt.
Säilytystilojen kuvaus ja lisätiedotLämmin varasto 11,5 m² talon yhteydessä

Kiinteistötunnus/laitostunnus743-2-16-15
EnergialuokkaE2018
Tontin pinta-ala779 m²
Tontin omistusOma

Haluatko lisätietoja tai varata esittelyn?

Jätä numero tai sähköposti niin otan sinuun yhteyttä pikimmiten.