Peipontaival 2,
60200 Seinäjoki

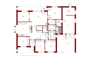
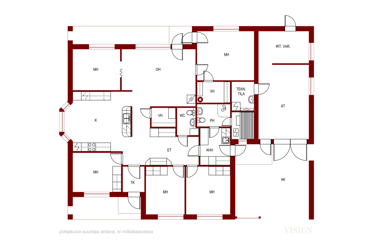
5 mh,oh,k,khh,kh,s,wc,at,ak


209 000 €

(1583 €/m²)

Tyyppi
Omakotitalo
Asuinala
132.0 m²
Alue
Kärki
Rakennusvuosi
1988

Hyväkuntoinen omakotitalo omalla tontilla, Kärjen asuntoalueella. Tässä täystiilitalossa on tilaa isommallekin perheelle. Kodissa on viisi hyvänkokoista makuuhuonetta. Säilytystilaa löytyy mukavasti kahdesta vaatehuoneesta, lämpimästä autotallista ja varastosta sekä tilavalta käyttöullakolta. Toiselle autolle on paikka autokatoksessa. Kodissa on käytännöllinen pohjaratkaisu. Autokatoksesta on kulku kodinhoitohuoneeseen. Kodissa on erillinen wc sekä wc-istuin on myös kylpyhuoneessa. Kuntotarkastus on suoritettu Lakeuden Rakennusanalyysi, Harri Tekoniemen toimesta 5.6.2025 ja kartoitusraportti on saatavilla välittäjältä.

Lämmitysmuotona on sähkölämmitys varaavalla lattialämmityksellä. Olohuoneessa on tunnelmallinen Uuniseppien kaakeliuuni. Lisäksi kodissa on ilmalämpöpumppu, mitä voi käyttää lämmittämiseen tai viilentämiseen. Lämmityskulut ovat olleet kohtuulliset. V.2025,
21 542 kWh sisältäen sähköauton latauksen, käyttö- ja lämmityssähkön. Sähkön siirto ja myynti on ollut keskimäärin 232,00 eur/kk.

Tässä omakotitalossa on tehty monenlaisia remontteja ja huoltotoimenpiteitä säännöllisesti:
viemärit saneerattu sukittamalla ja vaihdettu wc-istuimet v.2024, asennettu ilmalämpöpumppu v.2019, ikkunat ja ulko-ovet maalattu v.2017, lämminvesivaraaja uusittu 12/2014, asennettu keittiöön Puustelli-kalusteet ja uusittu kodinkoneet sekä pintaremontoitu kaikki huoneet v.2013, maalattu sisäkatot v.2012, tiilikatto pesty ja suojakäsitelty v.2009 sekä käsitelty Bio Compilla 6/2025, ilmanvaihtokanavat puhdistettu, tarkastettu ja säädetty v.2009, uusittu wc-kalusteet v.2007, hiottu ja lakattu parkettilattia v.1999 ym.

Asumismukavuutta lisäävät koneellinen ilmanvaihto lämmöntalteenotolla, keskuspölynimuri ja kaapeli-TV. Puutarhassa on sadevesikaivo ja 500 litran säiliö, mihin kaivosta pumpataan vesi uppopumpulla. Kauniissa ja hyvin hoidetussa puutarhassa on monenlaisia istutuksia, marjapensaita, mustikkaa, vadelmaa, kukkia ja pensaita.

Uusi Kärjen alakoulu 2,2 km ja uusi Törnävän alakoulu 1,9 km sekä Pajuluoman alakoulu 1,2 km.
Pruukin yhtenäiskoulu, missä 5-9 luokat 1,5 km. Seinäjoen lukio 5 km.
Päiväkoti Tähti 2,2 km, Simunan päiväkoti ja Tikkuvuoren päiväkoti lähietäisyydellä.
Nuorisotilat Pajuluoman alueella. S-market Pajuluoma ja K-market Kärki sijaitsevat kävelymatkan päässä. Itäväylälle on hyvä yhteys. Tällä kodilla on alkuperäiset omistajat. Koti vapautuu sopimuksen mukaan.

Tervetuloa tutustumaan tähän hyvänä pidettyyn kotiin!
Voit varata myös oman esittelyajan.

Tiina Huhtakallio
Kiinteistönvälittäjä, LKV, KiAT, KED, KiLAT
Puh 050 3090 571
tiina.huhtakallio@katkanaho.fi

Kiinteistötoimisto Kätkänaho Oy
Keskuskatu 10
60100 Seinäjoki

Kiinteistötoimisto Kätkänaho Oy on toiminut alueella vuodesta 1962.

Yhteystiedot

  • Tiina Huhtakallio
  • tiina.huhtakallio@katkanaho.fi
  • 050 309 0571

Tiina Huhtakallio

Seuraava esittely

Ei tulevia esittelyjä

Sijainti
  • Kärki
  • Peipontaival 2
  • 60200
  • Seinäjoki
TyyppiOmakotitalo
Huoneistoselitelmä5 mh,oh,k,khh,kh,s,wc,at,ak
Asuinpinta-ala m²132 m²
Yhteensä m²190 m²
Kerros1
Kerroksia1
Käyttöönottovuosi1988
VapautuminenSopimuksen mukaan

Velaton hinta209 000 €
Myyntihinta209 000 €
Kiinteistövero508,00 €
Lisätietoja maksuistaSähkönkulutus v.2025, 21542,00 kWh sisältää sähköauton latauksen, käyttö- ja lämmityssähkön. Sähkön siirto on maksanut v.2025 1193,00 eur ja myynti 1590,00 eur eli yhteensä 2783,00 eur v.2025 (232,00 eur/kk) sisältäen sähköauton latauksen. Sähkönkulutus v.2024, 21642,15 kWh. 233,05 eur/kk. Hinta perustuu sen ajankohdan toteutuneeseen hintaan. Sähkön hinnan muutos vaikuttaa toteutuvaan kustannukseen. Normaalit omakotitalon maksut kiinteistöveron lisäksi mm. vakuutukset, jätehuolto, hulevesimaksu, vesi ym.

Sauna
  • oma sauna
Asuntoon kuuluu
  • kaapeli-tv
YleiskuntoHyvä
Tehdyt korjauksetV.2024: viemärit saneerattu sukittamalla. Molemmat wc-istuimet uusittu. V.2019: asennettu ilmalämpöpumppu. V.2017: ikkunat ja ulko-ovet maalattu. V.2014: uusittu lämminvesivaraaja. V.2013: Puustelli-keittiökalusteet ja kodinkoneet laitettu. Tapetoitu huoneet ja yksi makuuhuone maalattu. V.2012: maalattu sisäkatot. V.2009: tiilikatto pesty ja suojakäsitelty. Lisäksi tiilikatto käsitelty Bio Compilla muutaman kerran. Ilmanvaihtokanavat puhdistettu, tarkastettu ja säädetty. V.2007: wc-kalusteet uusittu. V.1999: parkettilattiat hiottu ja lakattu.
EnergialuokkaD2018
Lämmitysjärjestelmän kuvausSähkö, ilmalämpöpumppu, muu

Asunnon tilat ja materiaalit
  • Pääasiallinen rakennusmateriaali: tiili
Katto
  • Aumakatto
  • Tiili
Keittiön kuvaus
  • Lattiamateriaalit: parketti
  • Seinämateriaalit: tapetti
  • Varusteet: liesituuletin, astianpesukone, kiinteät valaisimet
  • Liesi: induktioliesi, erillisuuni
  • Jääkaappi ja pakastin: jääkaappi, pakastin
Kylpyhuoneen kuvaus
  • Lattiamateriaalit: laatta
  • Seinämateriaalit: kaakeli
  • Varusteet: suihkuseinä, lattialämmitys, wc-istuin, peilikaappi, kiinteät valaisimet
WC-tilojen kuvaus
  • Lukumäärä:1
  • Lattiamateriaalit: laatta
  • Seinämateriaalit: kaakeli
  • Varusteet: peilikaappi
Saunan kuvaus
  • Lattiamateriaalit: laatta
  • Seinämateriaalit: puu
Kodinhoitohuoneen kuvaus
  • Lattiamateriaalit: laatta
  • Seinämateriaalit: lasikuitutapetti
  • Varusteet: pesukoneliitäntä, pesuallas, lattialämmitys, lattiakaivo, keskuspölynimuri
Olohuoneen kuvaus
  • Lattiamateriaalit: parketti
  • Seinämateriaalit: tapetti
Makuuhuoneiden kuvaus
  • Lukumäärä: 5
  • Lattiamateriaalit: parketti
  • Seinämateriaalit: maalattu, tapetti
Säilytystilojen kuvaus ja lisätiedotKäyttöullakko, 2 vaatehuonetta, lämmin varasto ja lämmin autotalli.

Kiinteistötunnus/laitostunnus743-15-25-7
EnergialuokkaD2018
Tontin pinta-ala1068 m²
Tontin omistusOma
Lisätietoa kaavoituksestaSeinäjoen kaupunki puh 06-4162 111.

PalvelutS-market Pajuluoma, K-market Kärki.
Lisätietoa palveluistaNuorisotilat Pajuluoman alueella.
PäiväkotiPäiväkoti Tähti 2,2 km, Simunan päiväkoti ja Tikkuvuoren päiväkoti.
KoulutUusi Kärjen alakoulu 2,2 km ja uusi Törnävän alakoulu 1,9 km sekä Pajuluoman alakoulu 1,2 km. Pruukin yhtenäiskoulu, missä 5-9 luokat 1,5 km. Seinäjoen lukio 5 km.

Samankaltaisia asuntoja